Capannone in vendita

Nave, Via Maddalena
€ 605.000
1 locale 1 locale
550 Mq 550 Mq
1 bagno 1 bagno

Capannone in vendita

Nave, Via Maddalena

Questo immobile appartiene ad un'unità principale con metratura più ampia

Descrizione annuncio

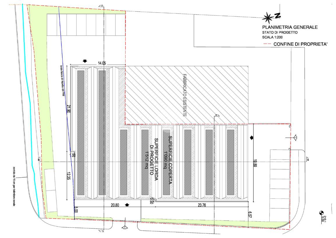
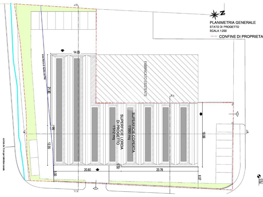
A Nave in zona industriale, proponiamo in vendita capannone, con una superficie totale di circa 550 mq, con piazzale privato.

L'immobile verrà consegnato con muri di cinta, piazzale asfaltato, cancello carraio e pedonale, realizzazione interna di uffici e di servizi igienici, predisposizione per le utenze, pavimentazione industriale interna, serramenti e portoni industriali.

Il capannone potrà avere un'altezza massima interna di 9 mt.

Il lotto sarà dotato di parcheggi pubblici all'esterno e privati all'interno.

Il terreno si trova in piena zona industriale di Nave, comodo accesso per bilici.

L'intervento prevede la demolizione di edificio esistente e realizzazione di nuovo capannone.

Progetto variabile a seconda di particolari esigenze e progettazione sia del fabbricato che della distribuzione interna,su misura.

Mostra tutto

Nelle vicinanze

Trasporto pubblico Trasporto pubblico
Mompiano
Mompiano
3,0 Km
Via Brescia fr. 116
Via Brescia fr. 116
1,2 Km
Via Brescia fr.183
Via Brescia fr.183
1,2 Km
Scuole Scuole
Scuola Primaria Anna Frank
990 m
Istituto Filosofico Salesiano
1,4 Km
Scuola Secondaria di Primo Grado Galileo Galilei
1,8 Km
Scuola Primaria Don Milani
1,8 Km
Scuola Primaria Paolo Borsellino e Giovanni Falcone
2,0 Km
Farmacia Farmacia
Farmacia Comunale
1,2 Km
Farmacia Sant'Orso
1,6 Km
Farmacia Salus
2,6 Km
Ospedali Ospedali
Nikolajewka
2,5 Km
Supermercati Supermercati
Family Market
1,3 Km
Italmark
1,7 Km
Dpiù Discount
2,6 Km
Negozi Negozi
Il Mulino di Buffoli
1,1 Km
Panificio alimentari Dalmiani Nadia
1,2 Km
Forneria Fratelli Ghidini
2,8 Km
La Bottegabar
2,9 Km
Panificio Ferrarini
3,0 Km
Ristoranti Ristoranti
Agriturismo Da Brusö
470 m
Agriturismo La Castagnotta
490 m
La Casa Nel Bosco
720 m
Agriturismo Cascina Le Paneghette
800 m
Pizzeria Manuno Jolly
1,1 Km
Mostra tutto

Caratteristiche

Rif.:
61155302
Piano:
1 di 1 con ascensore (Piano terra)
Condizionamento:
Autonomo
Ascensore:
Riscaldamento:
Autonomo
Giardino:
Privato
Mostra tutto
Prezzo Prezzo
€ 605.000
Rata mutuo Rata mutuo
€ 2.856 / mese
Spese annue Spese annue
€ 0
Proponi il tuo prezzoProponi il tuo prezzo

Altre caratteristiche

Descrizione dei locali
Bagno Con Finestra

Classe Energetica

G
G
G
G
G
G
G
G
G
EP globale non rinnovabile:
88.00 kW h/m² anno
EP globale rinnovabile:
88.00 kW h/m² anno
EP invernale del fabbricato:
EP estiva del fabbricato:
Anno di costruzione:
2025
Riscaldamento:
Autonomo
Tipo impianto:
Ad aria
Tipo alimentazione:
Aria

Ti interessa visionare l'immobile?

Fissa un appuntamento  Fissa un appuntamento

Richiedi informazioni

Clicca su Leggi per aprire l'informativa
* Questi campi sono obbligatori

Calcola il tuo mutuo

Semplice e senza impegno
Anticipo

( % )
Mutuo

( % )

pochi semplici passi

inserisci i tuoi dati
Questionario completato
Grazie per aver richiesto un appuntamento senza impegno con un nostro Consulente del Credito e Assicurativo.

Hai inserito correttamente tutti i dati necessari e a breve riceverai una e-mail con un link da convalidare per inviare i tuoi dati.
Affiliato
Industriale Valtrompia Srl
Via Zanardelli, 30 25062 Concesio (BS)

Il nostro staff


  • Simone Busecchian
    Responsabile

  • Simona Forti
    Affiliata

  • Giuliano Galanti
    Responsabile

  • Davide Albano
    Collaboratore

  • Mario Maxhaku
    Collaboratore

  • Mattia Scavone
    Collaboratore
Via Zanardelli, 30 25062 Concesio (BS)
Zona: Brescia Nord - Collebeato - Concesio - Bovezzo - Nave - Villa Carcina
Mostra su mappa
Orari: 8:30-12:30 14:30-19:00
Affiliato
Industriale Valtrompia Srl
Via Zanardelli, 30 25062 Concesio (BS)

2025 Tecnocasa Franchising S.p.A. - P. IVA 08365160152 - Via Monte Bianco 60/A 20089 Rozzano (MI). Ogni agenzia ha un proprio titolare ed è autonoma. Privacy policy | Policy utilizzo | Cookie policy